爱游戏网页版注册(中国区)官方网站

行业知识

断电事故状态下磨机电动机轴承保护与实现

2023-03-17 10:16:01 爱游戏网页版注册(中国区)官方网站

断电事故状态下磨机电动机轴承保护与实现

导读

针对电网意外断电后磨机电动机轴承易出现划伤、研磨以及损坏的问题,提出了几种解决方案,并介绍了各自的实现方法与特点。通过对比发现:事故状态下改变磨机停机方式的方案更具有经济性、可靠性和安全性,具有很好的推广应用价值。

近年来,随着“一带一路”的推进,矿用磨机的 出口数量与日俱增,尤其是矿产资源丰富的非洲刚果金。由于刚果金的电网不稳定,在保护措施不完善的情况下,意外断电会对设备造成严重损坏。而作为关键件的磨机电动机轴承,其润滑好坏,直接影响到磨机的使用寿命和运转率,且影响磨机的产量和企业的经济效益。


1、问题的产生

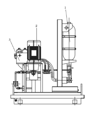
考虑到前期的投资与后期的运维成本,刚果金项目的大部分客户会选用“低速无刷同步电动机+气动离合器+开式大小齿轮”的边缘传动形式,如图 1 所示。该传动形式主要由网侧高压电源开关、低速同步电动机、气动离合器、传动小齿轮和慢速驱动装置组成,具有传动链简单、占地面积小、安全可靠的特点。

图片关键词

图1 磨机边缘传动形式


1.网侧高压电源开关 2.低速同步电动机 3.气动离合器 4.传动小齿轮 5.慢速驱动装置

磨机电动机为低速同步电动机,因功率较大,且轴承为滑动轴承,所以配备有高低压润滑站。磨机电动机启动前,要求先开启高压润滑泵,至少运行 15 min;电动机停机时,需要再次开启高压润滑泵,至少运行 15 min 后方可停止。


电网稳定情况下,磨机电动机启动、停机及运行都需按照磨机 PLC 程序运行。在电动机启动、停机过程中,高压供油系统可向电动机两端的轴承提供高压油,使主轴浮起,在主轴与滑动轴承之间形成一定厚度的油膜,降低电动机的启动力矩,避免烧瓦。电动机正常运转后,由低压供油系统给主轴和滑动轴承提供润滑油,延长电动机的使用寿命。


刚果金的电网不稳定,经常出现意外断电 (以下简称事故状态),事故状态会造成电动机与磨机之间的气动离合器脱开、电动机的润滑系统停止工作、磨机的润滑系统停止工作。电动机与磨机之间的气动离合器脱开后,电动机由于惯性还会持续旋转一段时间,据统计某些项目电动机到达完全静止状态的时间能达 40 min 左右。断电后,电动机润滑系统已停止工作,无法持续给电动机轴瓦提供支撑和润滑。尤其在电动机转速低到一定程度时,甩油环也不能随电动机转子旋转,电动机转轴与轴瓦之间的油量无法形成油膜,导致转轴与轴瓦接触摩擦,造成轴瓦划伤、研磨甚至烧瓦。


因此,如何避免在事故状态下转轴与轴瓦发生接触摩擦,是研究的重点,也是大多数刚果金项目亟待解决的问题。


2、解决方案

轴承作为电动机重要的组成部分,滑动轴承凭借结构与性能优势,使得其在良好的润滑条件下,降低了设备损耗,从而最大程度地降低了滑动摩擦以及表面摩擦的不利影响,实现了维护成本以及设备支出费用的有效控制。为了解决事故状态下磨机电动机轴承划伤、研磨甚至烧瓦的问题,笔者提出了 4 种解决方案。


2.1 配置液压蓄能器

在电动机轴承润滑系统回路中配置液压蓄能器,将液压蓄能器与磨机电动机轴承连接一起使用,用于事故状态下给电动机轴承供油。蓄能器液压站由充气泵装置、蓄能器组件、安全阀组及仪表等组成,如图 2 所示。电动机启动前,控制系统自动检测蓄能器中油的压力是否满足保护要求。当压力小于最低设定值时,蓄能器泵自动运行,并向蓄能器内充油;当压力大于最高设定值时,蓄能器泵自动停止。在电动机工作过程中,若出现事故状态,控制阀组上的电磁阀会立即断电,蓄能器内的油会流向电动机轴承里,直至电动机停止转动。受场地空间和成本影响,蓄能器的容量不能无限放大。蓄能器的主要作用是短期内 (60~ 90 s) 给轴承供油、保持系统压力、缓和冲击力等。对于事故状态下,主电动机到达完全静止状态长达 40 min 的工况,配置液压蓄能器显然是不适用的。

图片关键词

图2 液压蓄能器站


1.蓄能器组件 2.充气泵装置 3.安全阀组及仪表

2.2 高位油池低压循环供油

电动机轴承润滑方式采用高位油池低压循环供油,主要是利用高位油池内润滑油的重力,实现对事故状态下电动机轴承的淋油润滑。该方案不仅需要根据电动机停机时间折算出高位油池的容积,还要考虑高位油池释放润滑油后,回收油箱的容积。通常情况下,回收油箱体积较大,且要求安装于地下室,同时高位油池需要放置在一定高度的平台上。该方案虽然可行,但现场施工难度大、投入成本和维护成本较高。


2.3 高压顶起装置

高压顶起装置主要由高压油泵、压力监控及分流元件、仪表及 UPS 电源等组成。在事故状态下,高压油泵可以实现从轴承室内取油,加压后再供给轴承,以达到持续润滑的作用,直至主电动机完全停止旋转。


以 2 000 kW 矿用磨机电动机的高压油泵功率可以计算出,高压顶起装置持续工作 40 min,UPS 电源的容量至少为 20 kVA。20 kVA 的蓄电池占地面积大,投资成本高,且蓄电池属于易损耗器件,需要定期充放电。该方案对于小功率电动机事故停机比较适用;对于大功率电动机事故停机,该解决方案成本过高,同时存在蓄电池失效的风险。


2.4 事故状态下磨机停机

事故状态下磨机停机主要是通过磨机电气控制系统来实现。


2.4.1 磨机电气控制系统

磨机电气控制系统主要由主电动机同步励磁柜、PLC 控制柜、低压配电保护柜、慢驱控制箱、磨机就地操作箱、润滑站就地操作箱、大小齿轮喷射润滑控制箱、气动离合器控制箱及测温电阻接线箱等组成。其中 PLC 控制柜为磨机电控系统的核心,主要完成对磨机主电动机的启停控制,对主轴承润滑和主电动机轴承润滑的控制和保护,并协调磨机电控系统各设备之间的报警和联锁控制。低压配电保护柜实现以下功能:①磨机润滑站高低压油泵电动机的控制;② 磨机电动机轴承润滑站高低压油泵电动机的控制;③为其他控制柜和控制箱提供电源。


2.4.2 磨机 UPS 系统

整个磨机电气控制系统和气动离合器的电磁阀 SV1 采用 UPS 供电,如图 3 所示。在电气控制系统里增加电网意外断电检测点。当电网意外断电时,继电器 K1 闭合,检测点发出电网意外断电信号。由于整个磨机电气控制系统和气动离合器的电磁阀 SV1 采用 UPS 供电,电网意外断电后,电磁阀 SV1 仍然带电,磨机电气控制系统仍然能够实现主电动机带负荷正常停机。一般情况下,气动离合器电磁阀容量约为 20 W,整个磨机电气控制系统中的控制回路电源容量约为 2 kVA,由于磨机带载停车时间很短,故选用容量为 3 kVA 的 UPS 电源即可实现。

图片关键词

图3 磨机 UPS 系统


2.4.3 磨机停机控制逻辑

在事故状态下,磨机停机控制程序中的控制逻辑如图 4 所示。当 PLC 检测到输入信号 I0.0 为 1 时,说明发生了断电事故,控制系统发出断电故障信息,同时控制逻辑中的断电故障不参与离合器的联锁控制。由于离合器控制电源采用的 UPS,此时 PLC 的输出信号 Q0.0 仍保持为 1,气动离合器电磁阀 SV1 持续带电,气动离合器不脱开,电动机与磨机一起带负荷快速停车,直至完全停止运转。

图片关键词

图4 磨机停机控制逻辑


事故状态下,改变磨机停机控制逻辑仅通过电气原理设计和磨机控制程序的优化,就可实现对磨机电动机主轴承的保护。该方案具有实施简便、投资成本低、可靠性高等优点。


3、结语

断电事故状态下对磨机电动机轴承的保护有 3 种方法:①通过采用配备高位油池的低压循环供油;② UPS 供电的高压顶起装置;③事故状态下改变磨机停机控制逻辑。该 3 种保护方式均得到了应用:紫金矿业刚果金铜矿项目采用了高位油池的低压循环供油解决方案;中铁资源刚果金绿纱铜钴矿 φ3.8 m×5.8 m 球磨机项目采用了 UPS 供电的高压顶起装置;洛钼刚果金 KFM 和 TFM 硫化矿项目采用了事故状态下改变磨机停机控制逻辑。经过现场应用反馈,事故状态下,改变磨机停机控制逻辑的方案运行稳定、安全可靠、经济有效,更易于被广大用户所接受。


TAG: 电动机
爱游戏网页版注册(中国区)官方网站
产品
新闻
联系